









Контрольные кузовные размеры:
- Из заводского руководства по ремонту кузова LAND ROVER Freelander 2 2006-2014, в том числе размеры проемов кузова. Дополнительно приведены сведения о допустимых зазорах кузовных панелей.
Файл Land_Rover_Freelander_2_ 2006- BodyDIM.pdf
-Полное заводское руководство по разборке сборке и ремону кузова LAND ROVER Defender 110 содержит 202 стр. на английском языке.
Файл Freelander 2 2006- BODY REPAIR FULL.pdf
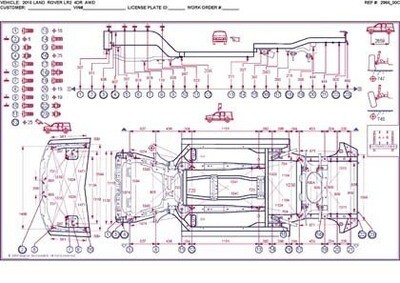
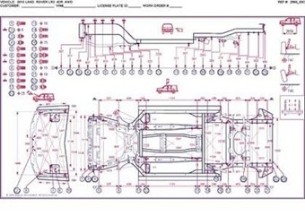
- Геометрические размеры кузова LAND ROVER LR2, как проекционные, так и непосредственного измерения, в том числе диагональные размеры проемов кузова и контрольные точки для восстановления геометрии.
Файлы
2008_LAND__ROVER_LR2__4DR__AWD.pdf
2010_LAND__ROVER_LR2__4DR__AWD.pdf
2012_LAND__ROVER_LR2__4DR__AWD.pdf
2008_Land_Rover_LR2.pdf
2015_Land_Rover_LR2.pdf
Обратите внимание: все файлы многостраничные.
В галереи товара представлены эскизы изображений уменьшенного объема.
Покупателю высылаются PDF файлы исходного качества.