









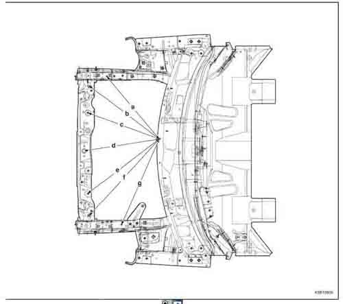
Контрольные кузовные размеры CHEVROLET Matiz/Spark (M200 M250) 2005-2010:
- Из заводского руководства по ремонту кузова, в том числе диагональные размеры проемов.
Файлы
Chevrolet_Matiz_Spark_2006_plant.pdf
Chevrolet_Matiz_Spark_2010_plant.pdf
- Проекционные геометрические размеры кузова с привязкой к стапелю. Дополнительно приведены цветные фотографии мест расположения контрольных точек на реальном автомобиле.
Файл Chevrolet_Matiz_5D_05-stapel.PDF
Обратите внимание: все файлы многостраничные.
В галереи товара представлены эскизы изображений уменьшенного объема.
Покупателю высылаются PDF файлы исходного качества.