






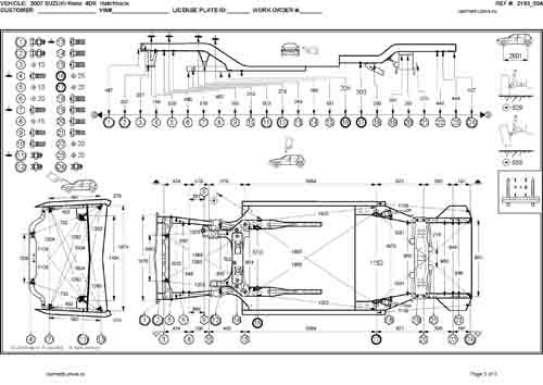
Контрольные кузовные размеры:
- Геометрические размеры кузова SUZUKI Reno 2004-2008, как проекционные, так и непосредственного измерения, в том числе диагональные размеры проемов кузова и контрольные точки для восстановления геометрии кузова.
Файлы
2007_SUZUKI_Reno__4DR__Hatchbac.pdf
2008_Suzuki_Reno.pdf
В галереи товара представлены эскизы изображений уменьшенного объема.
Покупателю высылаются PDF файлы исходного качества.