









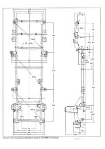
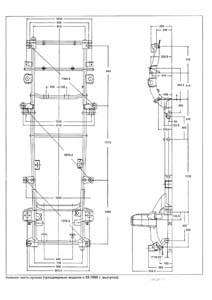
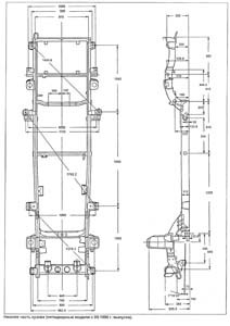
Контрольные кузовные размеры SUZUKI Vitara, Escudo, Sidekick 1988-2002:
- Из заводского руководства по ремонту кузова, в том числе диагональные размеры проемов кузова.
Файл Suzuki_Vitara_Escudo_1988-1998_body.pdf
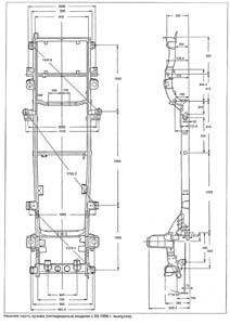
- Проекционные размеры с привязкой к стапелю.
Файлы
Suzuki_Vitara_3D_1988-2002-stapel.PDF
Suzuki_Vitara_5D_1990-2002-stapel.PDF
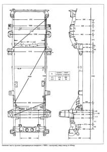
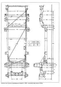
- Размеры кузова автомобилей американского рынка, как проекционные, так и непосредственного измерения, в том числе диагональные размеры проемов кузова.
Файлы
2000_SUZUKI_Vitara__2DR__4WD.pdf
2000_SUZUKI_Vitara__4DR__4WD.pdf
2004_SUZUKI_Vitara__4DR__2WD.pdf
Обратите внимание: все файлы многостраничные.
В галереи товара представлены эскизы изображений уменьшенного объема.
Покупателю высылаются PDF файлы исходного качества.