



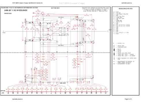
Контрольные кузовные размеры:
- Геометрические размеры кузова MINI Cooper Coupe (R58) 2011-2015, как проекционные, так и непосредственного измерения, в том числе диагональные размеры проемов кузова и контрольные точки для восстановления геометрии кузова.
Файл 2015_MINI_Cooper_Coupe_Hatchback_(Includes_S).pdf
Обратите внимание: все файлы многостраничные.
В галереи товара представлены эскизы изображений уменьшенного объема.
Покупателю высылаются PDF файлы исходного качества.