









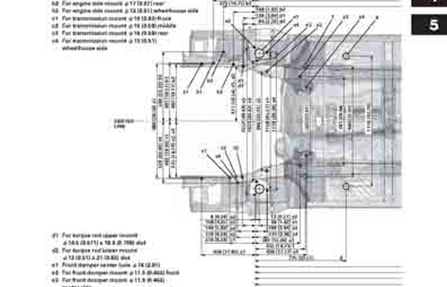
Контрольные кузовные размеры HONDA CR-V (RM) 2011-2018 из официального руководства по ремонту кузова. Содержат размеры верхней и нижней части кузова, в том числе размеры моторного отсека, диагональные размеры проемов кузова, размеры подрамников и контрольные точки для восстановления геометрии кузова. Даны значения допустимых зазоров кузовных панелей.
Файлы
2016_HONDA_CR-V.pdf
HONDA_CR-V_2012-2014.pdf
- Размеры кузова, как проекционные, так и непосредственного измерения, в том числе диагональные размеры проемов кузова.
Файлы
2012_HONDA_CR-V__4DR__2WD.pdf
2012_HONDA_CR-V__4DR__AWD.pdf
Обратите внимание: все файлы многостраничные.
В галереи товара представлены эскизы изображений уменьшенного объема.
Покупателю высылаются PDF файлы исходного качества.