









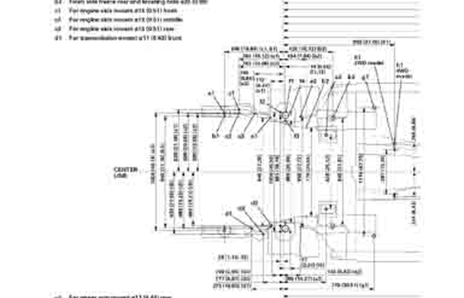
Контрольные кузовные размеры HONDA Crosstour 2009-2012-2015 из официального руководства по ремонту кузова. Содержат размеры верхней и нижней части кузова, в том числе размеры моторного отсека, диагональные размеры проемов кузова, размеры подрамников и контрольные точки для восстановления геометрии кузова. Даны значения допустимых зазоров кузовных панелей.
Файл HONDA_Crosstour_2009-2015.pdf
- Размеры кузова автомобилей HONDA Crosstour как проекционные, так и непосредственного измерения, в том числе диагональные размеры проемов кузова.
Файл 2013_HONDA_Crosstour__4DR__Hatc.pdf
Обратите внимание: все файлы многостраничные.
В галереи товара представлены эскизы изображений уменьшенного объема.
Покупателю высылаются PDF файлы исходного качества.