








Контрольные кузовные размеры TOYOTA Yaris, Vitz, Echo (P10) 1999-2005:
- Из заводского руководства по ремонту кузова для исполнений СЕДАН и ХЕТЧБЭК, в том числе диагональные размеры проемов.
Файлы
Toyota_Yaris_P10_2D_4D_brm.pdf
Toyota_Yaris_P10_3D_5D_brm.pdf
- Проекционные геометрические размеры кузова с привязкой к стапелю.
Файлы
VITZ_3-D_HATCHBACK_P10_1999-2003-stapel.PDF
VITZ_3-D_HATCHBACK_P10_2003-2005-stapel.PDF
VITZ_5-D_HATCHBACK_P12_2003-2005-stapel.PDF
VITZ_5-D_WAGON_P10_1999-2003-stapel.PDF
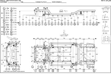
-Геометрические размеры, как проекционные, так и непосредственного измерения, в том числе диагональные размеры проемов кузова и контрольные точки для восстановления геометрии.
Файлы
2000_TOYOTA_ECHO__2DR.pdf
2003_TOYOTA_ECHO__4DR__Sedan.pdf
2004_TOYOTA_ECHO__4DR__Hatch.pdf
Обратите внимание: все файлы многостраничные.
В галереи товара представлены эскизы изображений уменьшенного объема.
Покупателю высылаются PDF файлы исходного качества.