






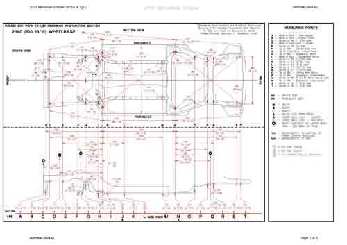
Контрольные кузовные размеры:
- Геометрические размеры кузова MITSUBISHI Eclipse 1999-2005, как проекционные, так и непосредственного измерения, в том числе диагональные размеры проемов кузова и контрольные точки для восстановления геометрии кузова.
Файлы
2003_MITSUBISHI_Eclipse__2DR__Hatchback.pdf
2003_MITSUBISHI_Eclipse__Spyder_Convertible.pdf
2003_Mitsubishi_Eclipse_Coupe_(4_Cyl.).pdf
2003_Mitsubishi_Eclipse_Coupe_V6.pdf
2003_Mitsubishi_Eclipse_Spyder_V6.pdf
Обратите внимание: все файлы многостраничные.
В галереи товара представлены эскизы изображений уменьшенного объема.
Покупателю высылаются PDF файлы исходного качества.