



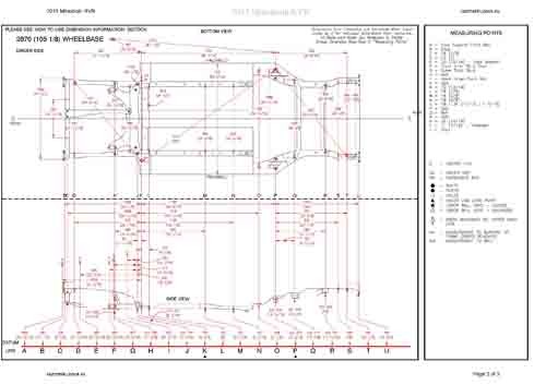
Контрольные кузовные размеры:
- Геометрические размеры кузова MITSUBISHI RVR 2010-2019--, как проекционные, так и непосредственного измерения, в том числе диагональные размеры проемов кузова и контрольные точки для восстановления геометрии кузова.
Файлы
2015_Mitsubishi_RVR.pdf
2018_Mitsubishi_RVR.pdf
Обратите внимание: все файлы многостраничные.
В галереи товара представлены эскизы изображений уменьшенного объема.
Покупателю высылаются PDF файлы исходного качества.