









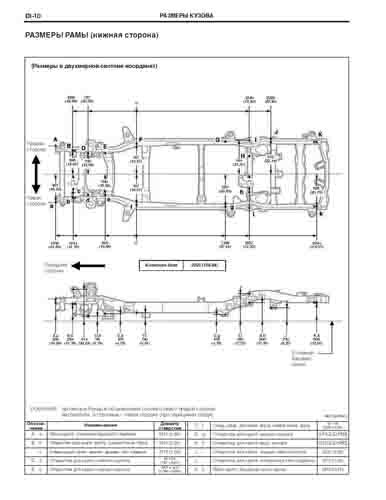
Контрольные кузовные размеры из официального руководства по ремонту кузова LEXUS GX400 (GRJ158) 2009-2023, в том числе диагональные размеры проемов кузова и контрольные точки для восстановления геометрии.
Файл LEXUS_GX400_(GRJ158)_2009-2023.pdf
В галереи товара представлены эскизы изображений уменьшенного объема.
Покупателю высылаются PDF файлы исходного качества.