









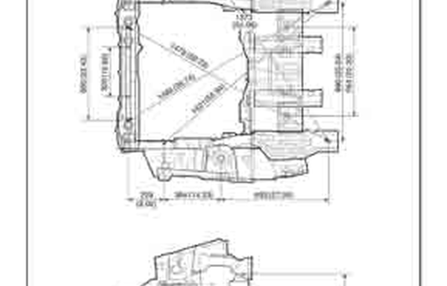
Контрольные кузовные размеры из официального руководства по ремонту кузова CHEVROLET Kalos 2003-2008, в том числе диагональные размеры проемов кузова. Даны допустимые зазоры кузовных панелей.
Файл Chevrolet_Kalos_2003-2008.pdf
В галереи товара представлены эскизы изображений уменьшенного объема.
Покупателю высылаются PDF файлы исходного качества.