









Контрольные кузовные размеры VOLKSWAGEN Golf седьмого поколения :
- Из заводского руководства по ремонту кузова VOLKSWAGEN Golf (5G1, BQ1) 2012-2020, e-Golf (BE1, BE2) 2013-2020, Golf Sportsvan (AM1, AN1) 2014-2020, Golf Variant (BA5, BV5) 2013-2020, в том числе размеры проемов кузова. Дополнительно приведены сведения о допустимых зазорах кузовных панелей. Производитель предупреждает: "Все размеры используются только для проверки; точные размеры задаются стапелем."
Файлы
Golf_VII_(5G1,_BQ1)_2012-2020.pdf
e-Golf_(BE1,_BE2)_2013-2020.pdf
Golf_Sportsvan_(AM1,_AN1)_2014-2020.pdf
Golf_Variant_(BA5,_BV5)_2013-2020.pdf
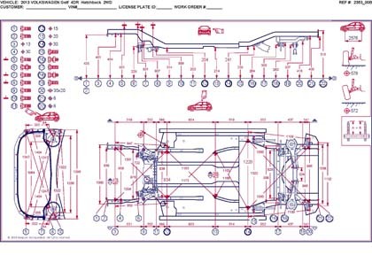
- Размеры кузова VOLKSWAGEN Golf VII автомобилей североамериканского рынка, как проекционные, так и непосредственного измерения, в том числе диагональные размеры проемов кузова. Модели 4-Door Hatchback, Sportwagen,Sportwagen IRS.
Файлы
2013_VOLKSWAGEN_Golf__2DR__Hatc_USA.pdf
2013_VOLKSWAGEN_Golf__4DR__Hatc_USA.pdf
2019_Volkswagen_Golf_4-Door_Hatchback.pdf
2019_Volkswagen_Golf_Sportwagen_(Exc._IRS).pdf
2019_Volkswagen_Golf_Sportwagen_IRS.pdf
В галереи товара представлены эскизы изображений уменьшенного объема.
Покупателю высылаются PDF файлы исходного качества.